
Elmore Street
London, UK
Commission
2022
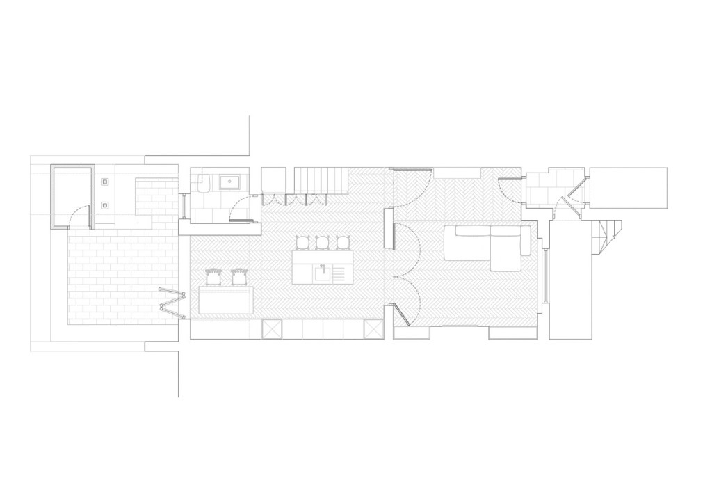
A younger couple with a ground and lower ground floor flat in De Beauvoir, London in early 2021. The building consists of two flats with a shared rear garden area, one accessed through the lower ground floors doors and the other from a metal staircase that services that rear end of the garden. Located in a conservation area, the couple were looking for a proposal to extended and renovate the existing space whilst also upgrading the existing windows to provide more thermal comfort.
The proposed extension respects the existing context, featuring a sympathetic shortened block that integrates seamlessly with the existing fabric. Crittal-style doors create a thin threshold between the rear garden and the kitchen/dining area, offering an option for outdoor dining in the summer. A series of rooflights, styled similarly to the doors, allow light to penetrate deeper into the kitchen area.
Internally, the partial removal of the existing chimney breast provides a continuous run of kitchen units, allowing for a small kitchen island/breakfast bar area without compromising the kitchen’s usability and movement. A previously closed opening is reinstated between the entrance and staircase, creating a division between the lounge and kitchen areas. Internal glazed doors maintain connectivity between these spaces, enhancing natural lighting and thermal comfort.





